NEW BUILDING SEGET DONJI – TWO-BEDROOM APARTMENT WITH SEA VIEW

flat

Seget

Specification

Details

Content

Price

235000 €

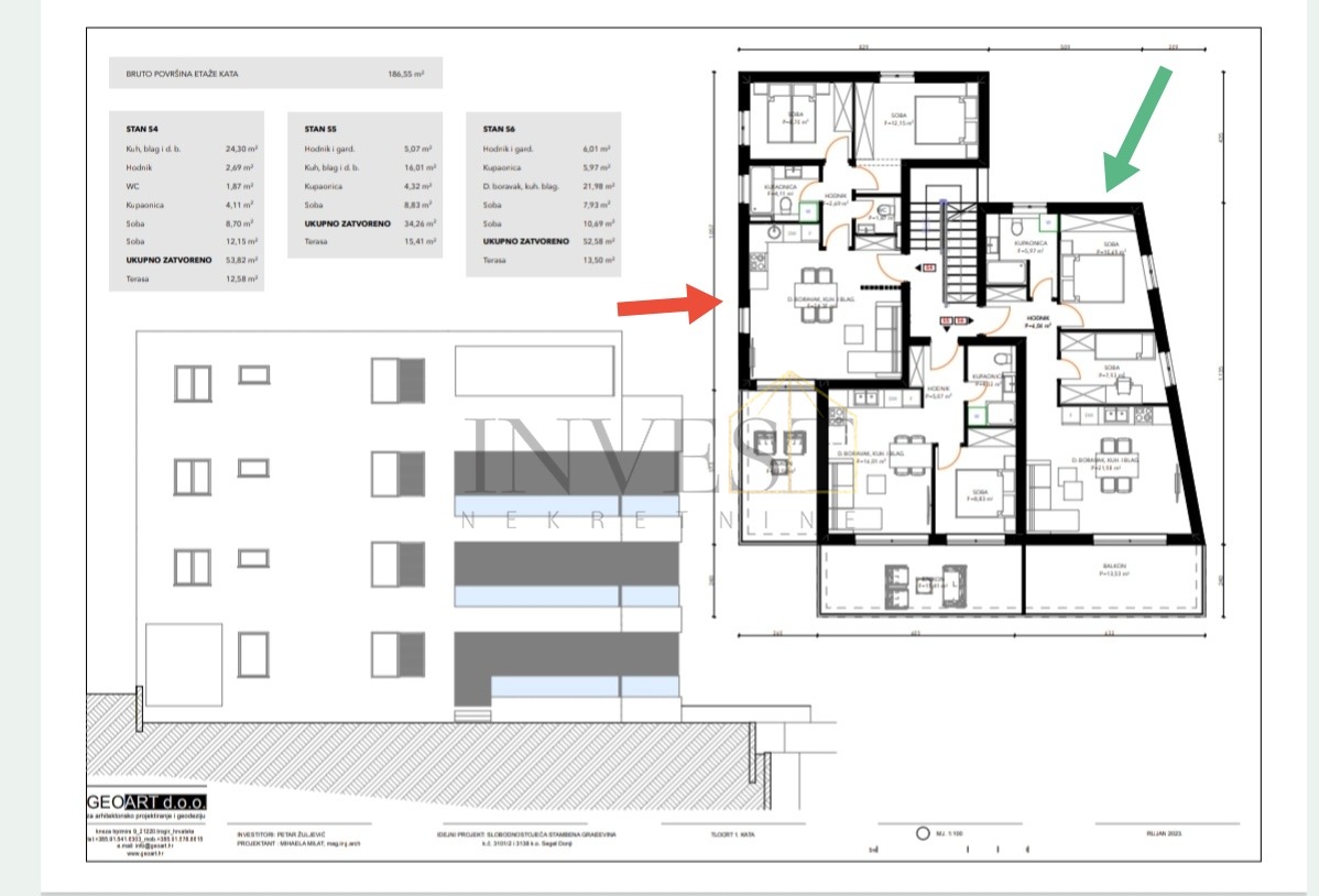
For sale is a modern apartment in a new building located in Seget Donji, in an extremely attractive and quiet location, just a few minutes from the beach and the center of Trogir. The apartment with a total area of ​​65 m², oriented southeast, is located on the first floor of a residential building. It has a functional layout and consists of an entrance hall, bathroom, two bedrooms, living room with kitchen and dining room, and a spacious balcony that provides a pleasant stay throughout the day. The apartment has underfloor heating installed throughout the apartment, as well as an associated outdoor parking space. The location provides quick and easy access to all important amenities, ideal for both everyday life and as an excellent investment for tourist rental. The airport and the highway connection are approximately 10 minutes away by car. The building is in the final phase of construction, facade works are currently underway, and the planned move-in is scheduled for a few months. For more information and to arrange a tour, feel free to contact us at +385 (0)95 5759 100 (Luka) or luka@investnekretnine.com

Pošaljite upit

kontakt

Send inquiry

contact